Grundstück in 42283 Wuppertal, 563 m²

  • €550.000
  • €861/m²

Übersicht

Immobilien-ID: 17381
  • Grundstücke
  • Immobilientyp

Beschreibung

Vollständige Beschreibung:

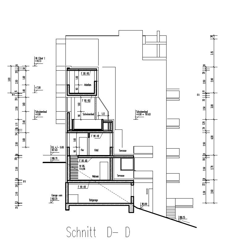
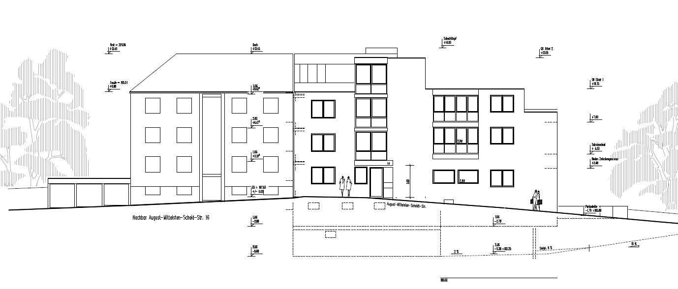
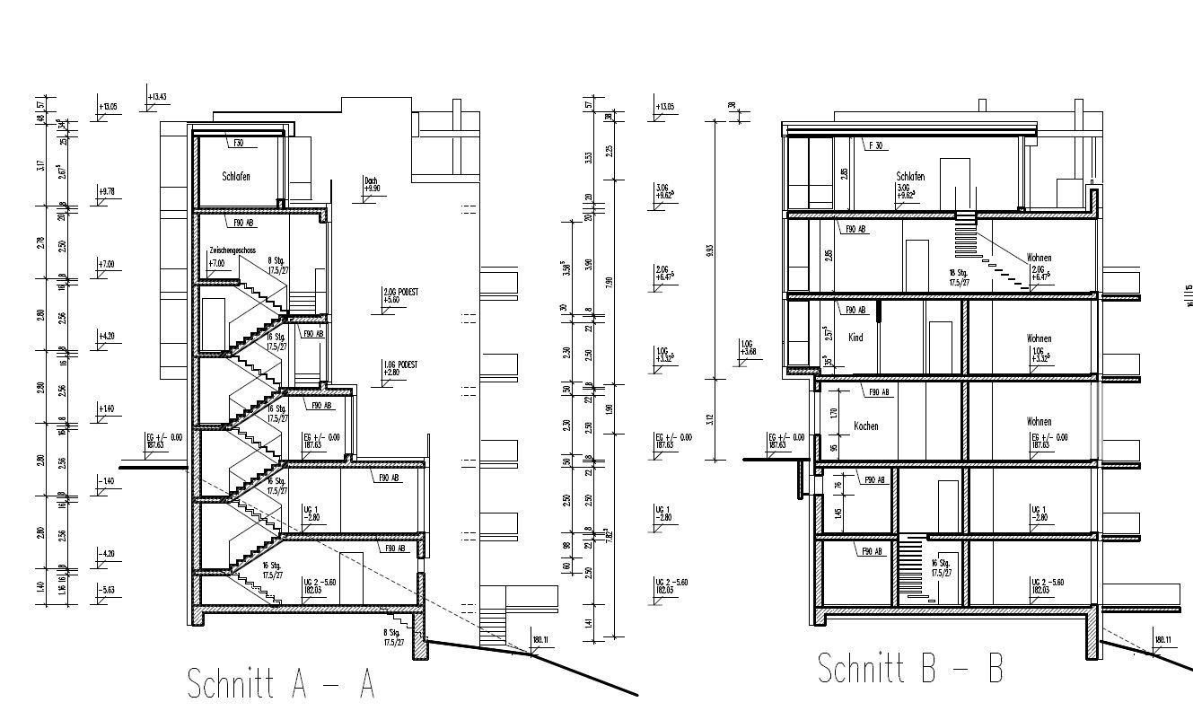
Auf dem Grundstück ist die Errichtung eines Wohngebäudes mit 11 Wohneinheiten und einer Gesamtwohnfläche von 565 m² geplant.

Das Projekt sieht eine notwendige Anzahl von Stellplätzen in einer mehrgeschossigen Tiefgarage vor.

Die Gesamtprojektkosten belaufen sich auf 2.107.000 €.

Der geplante Verkaufspreis pro Quadratmeter beträgt 4.500 €.

Von dem Investor wird ein Kapital in Höhe von 550.000 € benötigt.

Die geplante Projektlaufzeit beträgt 18 Monate.

Der prognostizierte Gewinn in Höhe von 509.813 € wird zwischen dem Investor und der DEM GROUP aufgeteilt.

Detaillierte Informationen erhalten Sie auf Anfrage.

Adresse

  • Stadt: Wuppertal
  • Bundesland/Landkreis: Nordrhein-Westfalen

Details

Aktualisiert am Oktober 24, 2025 beim 4:36 p.m.
  • Immobilien-ID 17381
  • Preis €550.000
  • Grundstücksfläche 563 m²
  • Baujahr 2027
  • Immobilientyp Grundstücke
  • Immobilienstatus Zu verkaufen
  • Jahresertrag (möglich) 254.906,50 € (~46,34%)
  • Objektstatus Frei
  • Etage Nach Plan
  • Anzahl der Wohnungen Nach Plan

Grundrisse

Kontaktinformationen

Angebote ansehen
Ekaterina Demidovа

Anfrage zu dieser Immobilie senden

0 Rezension

Sortieren nach:
Hinterlassen Sie eine Rezension

Hinterlassen Sie eine Rezension

Vergleichen Sie Inserate

Vergleichen